Appartement - Marcq en Baroeul
Ref : 3746
Description :
Marcq en Baroeul appartement à la location.
Secteur Croisé Laroche à proximité de toutes commodités
Résidence récente de standing et sécurisée.
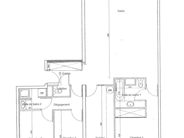
Appartement F4 (loué non meublé) d'une surface hab de 104.5 m² comprenant: Un hall d'entrée (placard), wc, séjour lumineux accès sur une terrasse expo Sud/Ouest.
Cuisine totalement équipée.
D'un côté chambre parentale avec salle de bain.
De l'autre côté deux chambres et salle de douche.
Deux garages en sous-sol.
Belles prestations!
Disponible à la location.
Loyer 1700 €+160 € de provisions sur charges.
Loyer charges comprises 1860€
Dépôt de garantie 1700€.
Honoraires charges locataire: visite, constitution de dossier, rédaction de bail et état des lieux: 1358.50€
(dont 313.50€ frais d'état des lieux)
Classe énergie C, Classe climat A
Montant des dépenses annuelles d'énergie pour un usage standard : entre 1190 € et 1650 € - sur les années 2021, 2022 et 2023 (abonnements compris).
Les informations sur les risques auxquels ce bien est exposé sont disponibles sur le site Géorisques : www.georisques.gouv.fr
